Проектирование Ресторана г. Белореченск
Параметры
Вид деятельности:
Ресторан
Местоположение:
г. Белореченск, ул. Мира
Площадь:
1375 м2
Срок выполнения:
42 рабочих дня
Задача:
Разработать комплекс проектной документации инженерных систем ресторана.
Решение:
На начальном этапе заказчик предоставил техническое задание, которое послужило основой для создания рабочей документации, охватывающей разделы ВК, ОВ и ЭОМ.
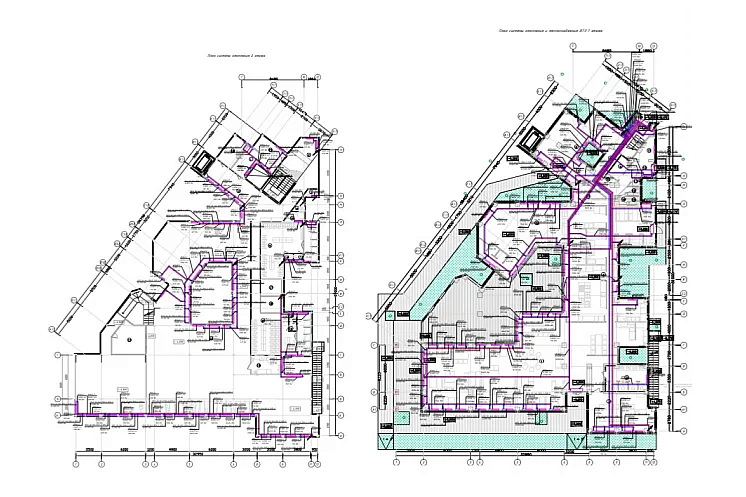
Одним из важных этапов проектирование являлась система отопления, вентиляции и кондиционирования, поскольку микроклимат в фитнес-центре и ресторане имеет большое значение для клиентов и персонала. При разработке систем вентиляции во внимание были приняты следующие аспекты: интеграция зон с различными функциями; выбор схемы циркуляции воздуха; определение параметров воздуха внутри и снаружи здания, а также объемы поступающего в помещение тепла и влаги.
При разработке проекта системы водоснабжения и канализации (ВК), наши специалисты разработали детальные схемы и чертежи в соответствии со всеми необходимыми требованиями и нормами. В проекте были учтены следующие факторы: расположение канализационных труб, точек забора воды и бытовых очистных сооружений; расположение насосных станция для подачи воды, а также расчет потребления и водоотведения.
Проект ЭОМ предусматривал детальное планирование электропроводки, установку распределительных щитов, а также размещение выключателей и розеток с учётом функционального зонирования помещения и требований заказчика. Особое внимание было уделено аспектам безопасности. В проекте были предусмотрены передовые защитные устройства и системы автоматизации, что обеспечивало надежное и бесперебойное электроснабжения.
Специалисты нашей компании ГК “ЗЛАТА” продемонстрировали высокий уровень профессионализма, ответственности и надёжности. Клиент выразил свою благодарность и удовлетворение результатом за своевременное решение поставленных задач.
Одним из важных этапов проектирование являлась система отопления, вентиляции и кондиционирования, поскольку микроклимат в фитнес-центре и ресторане имеет большое значение для клиентов и персонала. При разработке систем вентиляции во внимание были приняты следующие аспекты: интеграция зон с различными функциями; выбор схемы циркуляции воздуха; определение параметров воздуха внутри и снаружи здания, а также объемы поступающего в помещение тепла и влаги.
При разработке проекта системы водоснабжения и канализации (ВК), наши специалисты разработали детальные схемы и чертежи в соответствии со всеми необходимыми требованиями и нормами. В проекте были учтены следующие факторы: расположение канализационных труб, точек забора воды и бытовых очистных сооружений; расположение насосных станция для подачи воды, а также расчет потребления и водоотведения.
Проект ЭОМ предусматривал детальное планирование электропроводки, установку распределительных щитов, а также размещение выключателей и розеток с учётом функционального зонирования помещения и требований заказчика. Особое внимание было уделено аспектам безопасности. В проекте были предусмотрены передовые защитные устройства и системы автоматизации, что обеспечивало надежное и бесперебойное электроснабжения.
Специалисты нашей компании ГК “ЗЛАТА” продемонстрировали высокий уровень профессионализма, ответственности и надёжности. Клиент выразил свою благодарность и удовлетворение результатом за своевременное решение поставленных задач.
Хотите так же?
Если у Вас появились вопросы, наши специалисты с радостью проконсультируют по всем вопросам и постараются подобрать максимально современные решения и комфортные условия сотрудничества.
Этапы
Заключение договора
Заключение договора
Договор на проектирование, как ключевой документ, регламентирует взаимоотношения сторон, детально фиксирует условия выполнения проектных работ, включая временные рамки, стоимость услуг и распределение ответственности. На начальной стадии менеджер определяет потребность клиента.
Создание эскизного проекта
Создание эскизного проекта
Этап включает комплексную разработку концептуальных решений, охватывающих архитектурные и планировочные аспекты, а также инженерные системы. В ходе проекта определяются основные параметры объекта: внешний облик, габариты, пространственная организация и базовые концепции инженерных коммуникаций.
Разработка проектной документации и сметного расчета
Разработка проектной документации и сметного расчета
В рамках данного процесса разрабатываются комплексные технические чертежи и схемы, обеспечивающие соответствие проекта нормативным требованиям и стандартам. Проектная документация включает архитектурные решения, планы инженерных систем, конструктивные расчеты и сметную часть.
Согласование и экспертиза
Согласование и экспертиза
Проектная документация проходит комплексную проверку на соответствие нормативным требованиям. Этот процесс включает в себя обязательную экспертную оценку, которая осуществляется государственными или специализированными учреждениями.
Разработка рабочей документации
Разработка рабочей документации
Разработка рабочей документации представляет собой ключевой этап в процессе проектирования, требующий тщательной проработки и детализации всех конструктивных и инженерных решений. На данном этапе создаются окончательные чертежи и расчеты, которые являются основой для дальнейшего строительства.
Сдача работы заказчику
Сдача работы заказчику
На завершающем этапе все проектные документы и решения, прошедшие тщательную верификацию и валидацию, официально передаются заказчику. Передача проектной документации сопровождается процедурой подписания акта сдачи-приемки, что юридически фиксирует завершение этапа проектирования.
Наши преимущества
Профессиональный опыт с 2008 года
Специализируемся на монтаже инженерных сетей, демонтажных и отделочных работах, а также архитектурно-строительном и инженерном проектировании.
Сертифицированный персонал
Наши специалисты постоянно повышают свои квалификационные навыки и следят за современными тенденциями в строительной и проектной отраслях.
Специализированное оборудование
Наши специалисты используют профессиональное оборудование и качественные материалы, что позволяет обеспечивать эффективную работу на объектах.
Гибкость и адаптивность
Предлагаем нашим клиентам уникальную возможность гибко адаптировать проектные решения в соответствии с их текущими потребностями и требованиями.
Партнерские отношения
Благодаря многолетнему партнерству и выгодным условиям от поставщиков, мы можем предложить нашим клиентам строительные материалы по привлекательным ценам.
Получите консультацию специалиста
Заполните форму и наш консультант с вами свяжется