ПРОЕКТИРУЕМ И СТРОИМ ДЛЯ БИЗНЕСА



Проект ОВиК в Курганинской ЦРБ

Параметры

Вид деятельности:
Медицинское учреждение
Местоположение:
г. Курганинск, ул. Матросова 231
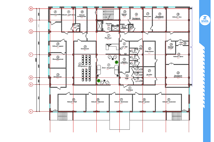
Площадь:
166 м2
Срок выполнения:
25 рабочих дней

Задача:

Разработать проектную документацию для медицинского учреждения, включая разделы: ОВиК - системы отопления, вентиляции и кондиционирования.

Решение:

Для успешной реализации проекта был проведен выезд на объект и тщательный анализ существующих условий.

Инженерные системы (ОВиК)
• При проектировании учитывались габариты вентиляционного оборудования, возможность прокладки воздуховодов и доступ для обслуживания без повреждения чистового ремонта.
• Во время осмотра выяснилось, что ограниченное запотолочное пространство требует максимально компактных и эффективных решений.
• Особое внимание уделено минимизации шума и вибраций.
• Подобрано оптимальное размещение вентиляционных каналов и оборудования с учетом ограждений пространства.

Результат
> Такой подход позволил внедрить современную вентиляцию с минимальным вмешательством в уже готовый интерьер.
> Проектная документация передана заказчику для дальнейшей реализации.

Хотите так же?

Если у Вас появились вопросы, наши специалисты с радостью проконсультируют по всем вопросам и постараются подобрать максимально современные решения и комфортные условия сотрудничества.

Этапы

Наши преимущества

Профессиональный опыт с 2008 года
Специализируемся на монтаже инженерных сетей, демонтажных и отделочных работах, а также архитектурно-строительном и инженерном проектировании.
Сертифицированный персонал
Наши специалисты постоянно повышают свои квалификационные навыки и следят за современными тенденциями в строительной и проектной отраслях.
Специализированное оборудование
Наши специалисты используют профессиональное оборудование и качественные материалы, что позволяет обеспечивать эффективную работу на объектах.
Гибкость и адаптивность
Предлагаем нашим клиентам уникальную возможность гибко адаптировать проектные решения в соответствии с их текущими потребностями и требованиями.
Партнерские отношения
Благодаря многолетнему партнерству и выгодным условиям от поставщиков, мы можем предложить нашим клиентам строительные материалы по привлекательным ценам.

Получите консультацию специалиста

Заполните форму и наш консультант с вами свяжется
consult-form__pic