Проект для офиса «Патрик и Мари» г. Краснодар
Параметры
Вид деятельности:
Офисное помещение
Местоположение:
г. Краснодар, ул. Зиповская
Площадь:
624 м2
Срок выполнения:
50 рабочих дней
Задача:
По заданию заказчика необходимо разработать проектную документацию для офиса в составе трехэтажного здания.
Решение:
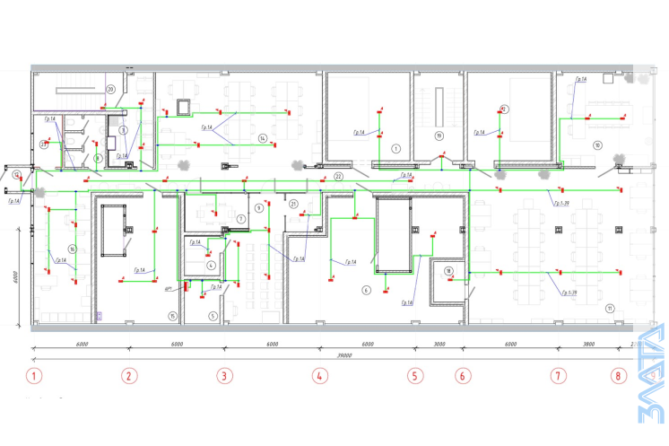
Проектирование офиса представляет собой комплексный процесс, включающий разработку различных разделов, каждый из которых отвечает за определенный аспект функционирования и безопасность объекта.
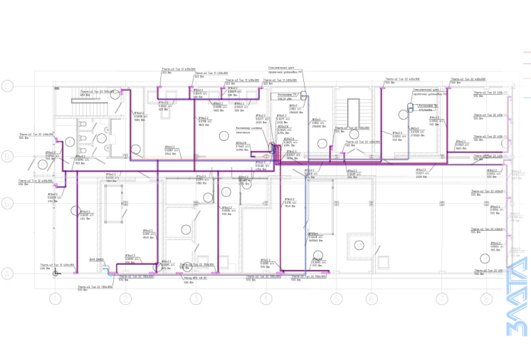
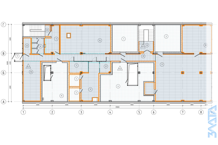
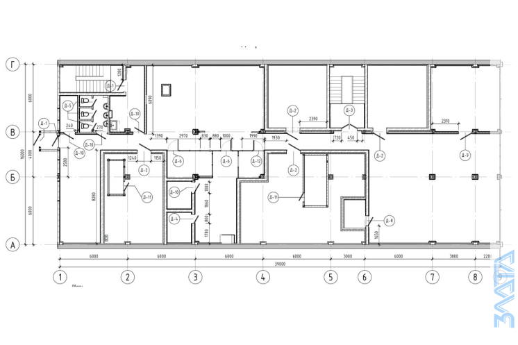
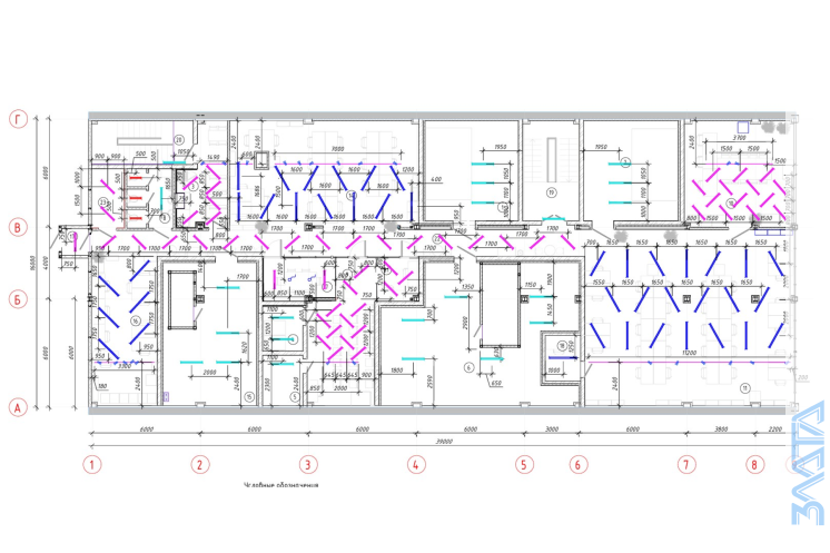
• В процессе работ были разработаны следующие разделы:
- архитектурные решения (АР);
- электроснабжение (ЭС);
- водоснабжение и канализация (ВК);
- отопление, вентиляция и кондиционирование (ОВиК);
- структурированная кабельная система (СКС);
- система охраны труда (СОТ);
- система контроля и управления доступом (СКУД);
- автоматическая пожарная сигнализация (АПС);
- система оповещения и управления эвакуацией (СОУЭ);
- система связи и оповещения (СО).
• Применены современные проектные решения, способствующие сокращению потребления строительных ресурсов и полному соблюдению действующих строительных стандартов, норм и правил.
• Проведены всесторонние согласования с инженерными службами и подрядчиками заказчика.
Результат:
> Вся рабочая документация соответствует градостроительным нормативам, обязательным противопожарным и санитарно-гигиеническим требованиям, строительным нормам и правилам, действующим на территории Российской Федерации.
• В процессе работ были разработаны следующие разделы:
- архитектурные решения (АР);
- электроснабжение (ЭС);
- водоснабжение и канализация (ВК);
- отопление, вентиляция и кондиционирование (ОВиК);
- структурированная кабельная система (СКС);
- система охраны труда (СОТ);
- система контроля и управления доступом (СКУД);
- автоматическая пожарная сигнализация (АПС);
- система оповещения и управления эвакуацией (СОУЭ);
- система связи и оповещения (СО).
• Применены современные проектные решения, способствующие сокращению потребления строительных ресурсов и полному соблюдению действующих строительных стандартов, норм и правил.
• Проведены всесторонние согласования с инженерными службами и подрядчиками заказчика.
Результат:
> Вся рабочая документация соответствует градостроительным нормативам, обязательным противопожарным и санитарно-гигиеническим требованиям, строительным нормам и правилам, действующим на территории Российской Федерации.
Хотите так же?
Если у Вас появились вопросы, наши специалисты с радостью проконсультируют по всем вопросам и постараются подобрать максимально современные решения и комфортные условия сотрудничества.
Этапы
Заключение договора
Заключение договора
Договор на проектирование, как ключевой документ, регламентирует взаимоотношения сторон, детально фиксирует условия выполнения проектных работ, включая временные рамки, стоимость услуг и распределение ответственности. На начальной стадии менеджер определяет потребность клиента.
Создание эскизного проекта
Создание эскизного проекта
Этап включает комплексную разработку концептуальных решений, охватывающих архитектурные и планировочные аспекты, а также инженерные системы. В ходе проекта определяются основные параметры объекта: внешний облик, габариты, пространственная организация и базовые концепции инженерных коммуникаций.
Разработка проектной документации и сметного расчета
Разработка проектной документации и сметного расчета
В рамках данного процесса разрабатываются комплексные технические чертежи и схемы, обеспечивающие соответствие проекта нормативным требованиям и стандартам. Проектная документация включает архитектурные решения, планы инженерных систем, конструктивные расчеты и сметную часть.
Согласование и экспертиза
Согласование и экспертиза
Проектная документация проходит комплексную проверку на соответствие нормативным требованиям. Этот процесс включает в себя обязательную экспертную оценку, которая осуществляется государственными или специализированными учреждениями.
Разработка рабочей документации
Разработка рабочей документации
Разработка рабочей документации представляет собой ключевой этап в процессе проектирования, требующий тщательной проработки и детализации всех конструктивных и инженерных решений. На данном этапе создаются окончательные чертежи и расчеты, которые являются основой для дальнейшего строительства.
Сдача работы заказчику
Сдача работы заказчику
На завершающем этапе все проектные документы и решения, прошедшие тщательную верификацию и валидацию, официально передаются заказчику. Передача проектной документации сопровождается процедурой подписания акта сдачи-приемки, что юридически фиксирует завершение этапа проектирования.
Наши преимущества
Профессиональный опыт с 2008 года
Специализируемся на монтаже инженерных сетей, демонтажных и отделочных работах, а также архитектурно-строительном и инженерном проектировании.
Сертифицированный персонал
Наши специалисты постоянно повышают свои квалификационные навыки и следят за современными тенденциями в строительной и проектной отраслях.
Специализированное оборудование
Наши специалисты используют профессиональное оборудование и качественные материалы, что позволяет обеспечивать эффективную работу на объектах.
Гибкость и адаптивность
Предлагаем нашим клиентам уникальную возможность гибко адаптировать проектные решения в соответствии с их текущими потребностями и требованиями.
Партнерские отношения
Благодаря многолетнему партнерству и выгодным условиям от поставщиков, мы можем предложить нашим клиентам строительные материалы по привлекательным ценам.
Получите консультацию специалиста
Заполните форму и наш консультант с вами свяжется