Проект магазина «ROYCE»
Параметры
Вид деятельности:
Магазин
Местоположение:
ТРЦ «МЕГА Адыгея-Кубань», Республика Адыгея
Площадь:
44,62 м2
Срок выполнения:
21 рабочий день
Задача:
Разработать проекты архитектурно-строительных решений (АР), электроосвещения и электроснабжения (ЭОМ), вентиляции и кондиционирования (ОВиК), водоснабжения и канализации (ВК) для нового магазина шоколада в торгово-развлекательном центре.
Решение:
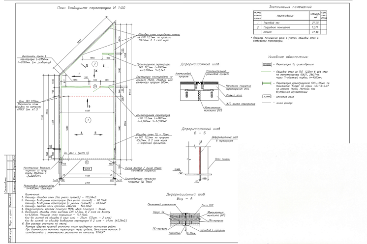
В рамках архитектурно-строительного раздела (АР) создан дизайн-проект интерьера магазина, включающий планировочные решения, отделку помещений, размещение торгового оборудования и мебели. Особое внимание уделено созданию комфортной и уютной атмосферы для покупателей.
Раздел электроснабжения и электроосвещения (ЭОМ) предусматривал расчет необходимой мощности, размещение электрических щитов, прокладку кабельных трасс и установку современных энергоэффективных светильников, обеспечивающих равномерное и достаточное освещение торгового зала и подсобных помещений.
Проект систем отопления, вентиляции и кондиционирования (ОВиК) включал подбор и размещение оборудования для поддержания комфортного микроклимата в магазине, а также обеспечение необходимого воздухообмена. Предусмотрены меры по энергосбережению, такие как использование рекуперации тепла.
Раздел водоснабжения и канализации (ВК) предполагал прокладку трубопроводов для хозяйственно-питьевого водоснабжения, организацию системы водоотведения, а также установку сантехнического оборудования.
Раздел электроснабжения и электроосвещения (ЭОМ) предусматривал расчет необходимой мощности, размещение электрических щитов, прокладку кабельных трасс и установку современных энергоэффективных светильников, обеспечивающих равномерное и достаточное освещение торгового зала и подсобных помещений.
Проект систем отопления, вентиляции и кондиционирования (ОВиК) включал подбор и размещение оборудования для поддержания комфортного микроклимата в магазине, а также обеспечение необходимого воздухообмена. Предусмотрены меры по энергосбережению, такие как использование рекуперации тепла.
Раздел водоснабжения и канализации (ВК) предполагал прокладку трубопроводов для хозяйственно-питьевого водоснабжения, организацию системы водоотведения, а также установку сантехнического оборудования.
Наши специалисты в сжатые сроки разработали полный комплект проектной документации, необходимой для строительства и оснащения нового магазина шоколада, учитывая все требования к созданию комфортных условий для персонала и покупателей.
Хотите так же?
Если у Вас появились вопросы, наши специалисты с радостью проконсультируют по всем вопросам и постараются подобрать максимально современные решения и комфортные условия сотрудничества.
Этапы
Заключение договора
Заключение договора
Договор на проектирование, как ключевой документ, регламентирует взаимоотношения сторон, детально фиксирует условия выполнения проектных работ, включая временные рамки, стоимость услуг и распределение ответственности. На начальной стадии менеджер определяет потребность клиента.
Создание эскизного проекта
Создание эскизного проекта
Этап включает комплексную разработку концептуальных решений, охватывающих архитектурные и планировочные аспекты, а также инженерные системы. В ходе проекта определяются основные параметры объекта: внешний облик, габариты, пространственная организация и базовые концепции инженерных коммуникаций.
Разработка проектной документации и сметного расчета
Разработка проектной документации и сметного расчета
В рамках данного процесса разрабатываются комплексные технические чертежи и схемы, обеспечивающие соответствие проекта нормативным требованиям и стандартам. Проектная документация включает архитектурные решения, планы инженерных систем, конструктивные расчеты и сметную часть.
Согласование и экспертиза
Согласование и экспертиза
Проектная документация проходит комплексную проверку на соответствие нормативным требованиям. Этот процесс включает в себя обязательную экспертную оценку, которая осуществляется государственными или специализированными учреждениями.
Разработка рабочей документации
Разработка рабочей документации
Разработка рабочей документации представляет собой ключевой этап в процессе проектирования, требующий тщательной проработки и детализации всех конструктивных и инженерных решений. На данном этапе создаются окончательные чертежи и расчеты, которые являются основой для дальнейшего строительства.
Сдача работы заказчику
Сдача работы заказчику
На завершающем этапе все проектные документы и решения, прошедшие тщательную верификацию и валидацию, официально передаются заказчику. Передача проектной документации сопровождается процедурой подписания акта сдачи-приемки, что юридически фиксирует завершение этапа проектирования.
Наши преимущества
Профессиональный опыт с 2008 года
Специализируемся на монтаже инженерных сетей, демонтажных и отделочных работах, а также архитектурно-строительном и инженерном проектировании.
Сертифицированный персонал
Наши специалисты постоянно повышают свои квалификационные навыки и следят за современными тенденциями в строительной и проектной отраслях.
Специализированное оборудование
Наши специалисты используют профессиональное оборудование и качественные материалы, что позволяет обеспечивать эффективную работу на объектах.
Гибкость и адаптивность
Предлагаем нашим клиентам уникальную возможность гибко адаптировать проектные решения в соответствии с их текущими потребностями и требованиями.
Партнерские отношения
Благодаря многолетнему партнерству и выгодным условиям от поставщиков, мы можем предложить нашим клиентам строительные материалы по привлекательным ценам.
Получите консультацию специалиста
Заполните форму и наш консультант с вами свяжется